华体会手机网页版登录入口

欢迎进入华体会手机网页版登录入口-华体会(中国) 官方网站!

全国咨询热线

13790146684
banner
  • 振动耐磨试验机

振动耐磨试验机

  • 发布日期:2024-06-07
  • 访问量:3313 次
暂无更多介绍
  • 振动耐磨试验机
  • 产品介绍
  • 相关产品
  • 振动耐磨试验机  DY-3116
    、设备概述
    振动耐磨试验的目的是把产品放在特殊的振动磨损机中,使用特殊的磨损颗粒来模拟样品在正常使用状况下的磨损。这种测试只适用于整个工件(比如配有电池的手机)。在产品的研发阶段,可以对产品的塑料模型进行磨损测试,来对产品表面的耐磨性进行评估。
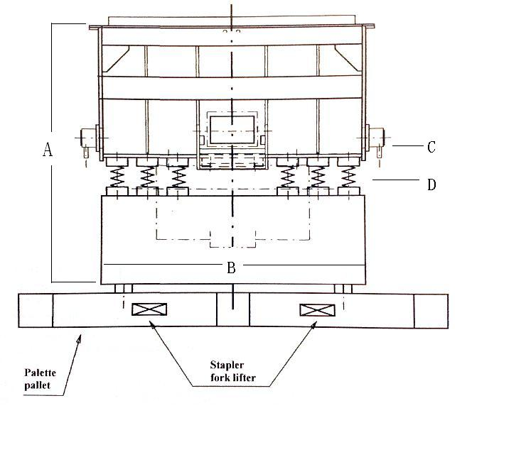
    二、主要参数
     

    (A)高:620MM(B)宽:360MM
    (C)长:640MM(D)螺旋弹簧,橡胶螺丝和螺母

    槽口尺寸:125×530mm
    重量:120kg
     
    三、各部件说明
    1、马达功率1*0.65kW;转速:每分钟3000转   频率:50HZ  电压:380V   
    2、螺旋弹簧,橡胶螺丝和螺母
    3、耐磨试验槽
    4、双向底部出水口
    5、进水进溶液口
    其它:底部四个橡胶脚,橡胶软管件。
     
     
    使用的磨损介质:
    *黄色圆锥体:磨损颗粒RKF 10K
    *绿色金字塔体:磨损颗粒RKK 15P
    *清洁剂:清洁剂FC 120
    测试样品应该是整个产品(比如,话机样品一定要包含按键面板和电池,而不是不完整的机壳)
                                                  图1  测试设备和磨损颗粒
    四、操作步骤
    1、测试机器的槽中要装满磨损颗粒,颗粒要混合3份的 RKF 10K(黄色圆锥体)和1份的 RKK 15P(绿色的金字塔体),总共约15升。注意,新的磨损颗粒在使用前,需要在机器上泡至少2升的水中运行  6小时以上,并且运行过程中每半个小时添加0.5升的水。
    磨损颗粒最多只能使用50个小时,之后就应该被更换。
    磨损颗粒在测试之前和整个测试过程中必须是湿润的。因此,在每次运行设备进行测试之前都应该在槽中加入1升的水。在加这1升水的同时,要加50毫升的Rösler清洁剂 FC 120。在槽被湿润之后(也许是清洁剂被溶解之后),再把产品样品放进来。在磨损测试的过程中,每半个小时之后都需要再添加0.5升的水。20毫升清洁剂。 
    能同时放到槽型震动器中进行测试的产品数量。
    *小的附件(耳机或电池) 4-5个
    * 小号手机(比如8310或8210) 3个
    * 中号手机(比如3310)       2个
    * 大号手机(比如9210)      2个
    * 大型产品      1个
     
    2、测试细节
    外观检查
    在磨损测试结果的报告中,需要包括磨损介质的使用时间。磨损介质的正确使用时间的计算方法是:预测试时间(6小时)+本次测试之前已被使用过的时间
                      图3:测试图

                           
                                                      图4:例子一,锐边
     
        
     
                                                              图5:例子二,圆形边缘
    3、接受标准
    除了键盘按钮之外,所有可见的机械部件都是2小时
    键盘按钮要3小时
    附加信息
    产品的耐磨性与采用的工艺有关。如果采用的工艺不能通过测试项目,那么就要确保样品的品质要足够的好。
    一般工艺或设计的典型耐磨性:
    * IMD表面,30~60分钟
    * 喷印,30~60分钟
    * 锐角(软性油漆等),1个小时
    五、电源箱操作示意图
    面板简单介绍;
     
     
    时间继电器简单操作实用说明:
    设置工作时间程序流程;按一下“MODE”进入时间设定模式,按‘1’‘2’‘3’‘4’可改变所需要的运行时间模式,常用模式为“—h—m。当选择出时间模式后,按“DISPLAY”返回显示画面。进入显示画面,按‘1’‘2’‘3’‘4’选择客户需要测试的时间后,必须按计数器面板上的复位键“RESET”
    然后按电源箱面板的绿色启动按钮机器开始工作。当测试完成后,也必须按计数器面板上的复位键“RESET”。